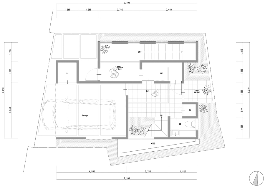
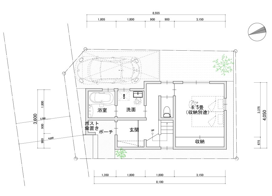
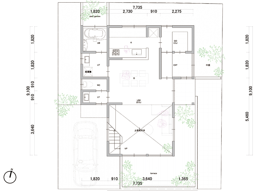
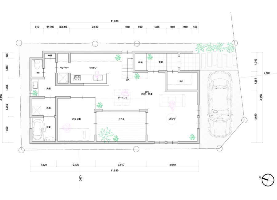
間取り・プラン 玄関を共有する二世帯住宅 玄関を中心に両親と柔らかくつながる二世帯住宅。 オフィス兼用住宅 職場と住居を兼用するプラン。 中心に鉄骨階段がある住宅 ストリップ階段が中心にした一体感のあるプラン。 中庭と音楽スタジオがある家 音楽が仕事のご主人のための音楽スタジオと、光を採り入れる中庭のプラン。 バイクとピアノと住む家 ご夫婦で趣味を思う存分楽しむ。 テラスとリビングが繋がる家 スキップフロアで家族が集まるLDK。 中庭の見える家 東南の角地の敷地で日当たり抜群だが、外部からの視線を遮る中庭プラン。 1