プラン
中庭の見える家
東南の角地の敷地で日当たり抜群だが、外部からの視線を遮る中庭プラン。
家族構成…夫:37 妻:35 息子:7 娘:5
- 用途地域
- 第一種低層住居専用地域に準ずる地域
- 建蔽率/容積率
- 第一種低層住居専用地域に準ずる地域
- 敷地面積
- 121.01㎡(36.60坪)
- 建築面積
- 60.50㎡
- 延べ床面積
- 121.01㎡
1F
家族のコミュニティを考慮して、1FにLDKとしてリビング階段とする。
中庭テラスを設けて光を集める→外部からの視線は遮るため、目隠し塀を高く設置。
柔らかくダイニングとリビングを分けてそれぞれ、食べる場所、くつろぐ場所と明確に意味を持たせる。
ゲストルームとしての5.2Jの空間は、ゲストがいないときは、LDKをより広く見せる為に開放する。
娘の事を考えて、洗面と脱衣を分けて設置→娘がお風呂に入っていても、夫は洗面が使えるように考慮。
キッチンに回遊性があり、家事動線が円滑。
キャンプ用品などが多く入るシューズインを設置→玄関からすぐに車に乗せられる
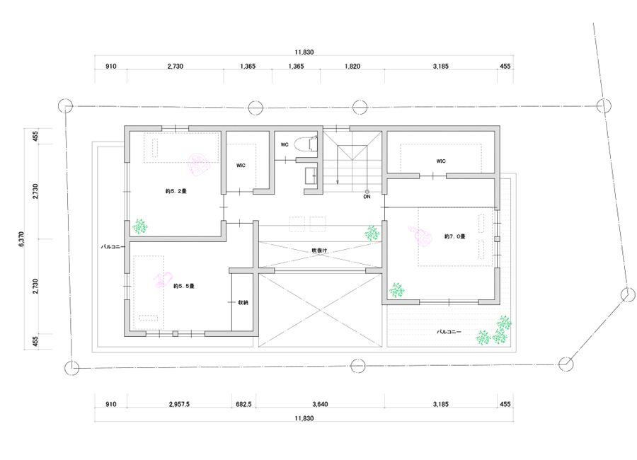
2F
子供は将来的に家を出てしまうと考えて、子供部屋よりも主寝室を東南角の良い位置に設置。
スタディーコーナーを設けて、ただの廊下ではなく意味ある空間にする。
吹き抜けがあることで、1Fと意識的にも空間的にもつながりを持たせる→1Fへの日当たりも良くなる。
各個室から布団が干せるように、バルコニーを設置→子供の自立性を促したい。
RF
ルーフバルコニーは、星を見ることが趣味の夫の希望。
お風呂上りに夫婦でお酒を飲む。
施工実例
間取り・プラン
家づくりの流れ
来場予約
資料請求
施工実例
リフォームの流れ
