プラン
オフィス兼用住宅
職場と住居を兼用するプラン。
家族構成…夫:42 妻:39 息子:8 息子:5
- 用途地域
- 第1種中高層専用地域
- 建蔽率/容積率
- 第1種中高層専用地域
- 敷地面積
- 89.43㎡
- 建築面積
- 53.22㎡
- 延べ床面積
- 123.56㎡
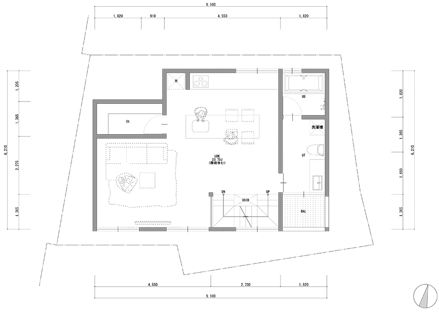
1F
職場と玄関と家の玄関は分離。
家の玄関は開放的な玄関→玄関先が庭になっており空間を広く演出。
キャンプ用品などが多く入るシューズインを設置→玄関からすぐに車に乗せられる。
2F
一体的なLDKで全体を見渡せる。
造作のキッチンでダイニングと一体的なデザインとする。
洗面とトイレが一体的でホテルのような水廻り。
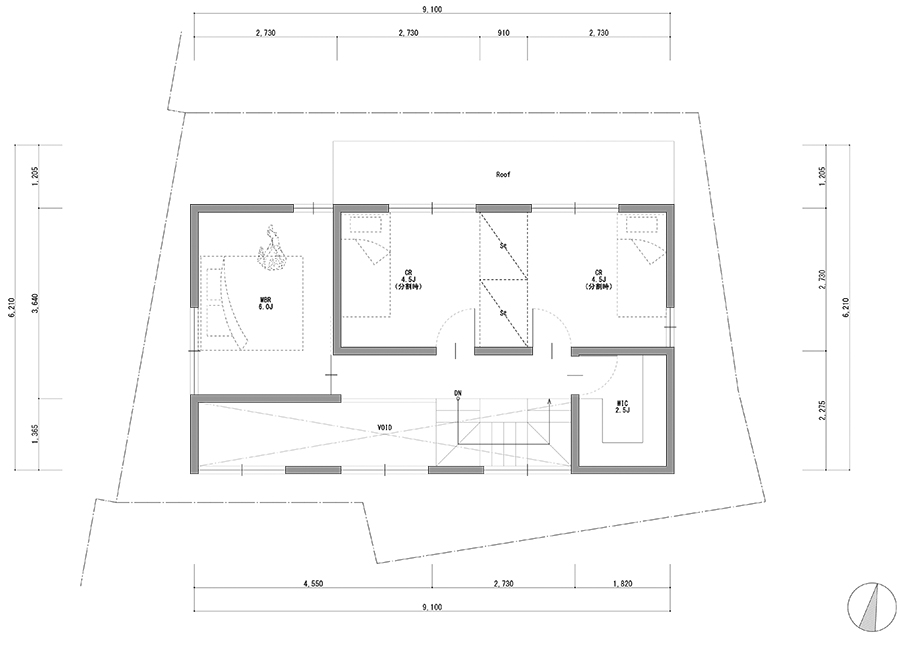
3F
吹き抜けがあることで2Fとの繋がり。
将来的に分ける事が出来る子供部屋→今は家族全員で子供部屋に寝て、将来的に夫婦は主寝室に移動し、子供部屋を分離。
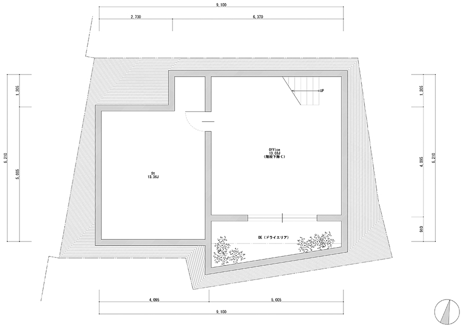
B1F
1階から繋がるオフィス空間。
ドライエリアから柔らかな採光を取り込めます。
施工実例
間取り・プラン
家づくりの流れ
来場予約
資料請求
施工実例
リフォームの流れ
